3 bedroom House - Terraced (Available)
Overview
A modern extended family home, with stunning open-plan kitchen/dining room and large garden, directly opposite the green in the heart of this sought-after village. (Property Ref: BRICKENDONGREEN)
Overall Description
This mid-terraced 1930's property has been significantly altered and improved by its current owners with the addition of a substantial single-storey extension to the rear, to create a large, open-plan kitchen/dining room with folding doors opening out into the garden, as well as a utility room and downstairs shower room. Also downstairs is a good-sized sitting room with open fireplace as well as a family room which could serve as a fourth bedroom or home office if so required. Upstairs there are three bedrooms, two being doubles, and a nicely appointed bathroom. It may also have potential for a loft conversion to add further bedrooms as others have in the area (subject to the usual consents). The house has a large driveway with ample off-street parking to the front, while the back garden is a good size, with a raised decking area overlooking the fields behind. If you are looking for a modern and spacious family home in the heart of a village community, with easy access to London, then look no further.
Location
The property is located directly opposite the village green - with its children's play area and, at the far end, kids football pitch - in the picturesque Hertfordshire village of Brickendon. The village is a thriving community with village hall, church (the Arts & Crafts Chapel of the Holy Cross & St Alban), several clubs and other activities (see www.brickendon-liberty.org.uk for details), a friendly local pub (The Farmer's Boy) with its farm shop, tennis club and the renowned Brickendon Grange Golf Club. The village is one of the most sought after in the area, not only for the beautiful countryside that surrounds it, including Broxbourne Woods (Hertfordshire's only National Nature Reserve), but also for its excellent transport links to London, with Bayford Station a 10 minute walk away (with regular services to Moorgate and Kings Cross) and easy access to the A1, A10 and M25. There are excellent public and state schools in the local area including the Bayford C of E Primary school and the Richard Hale and Simon Balle senior schools in Hertford, just 3 miles away. Hertford has an excellent range of amenities including independent shops, restaurants, supermarkets, a regular market, the newly refurbished Beam theatre and the castle with its gardens.
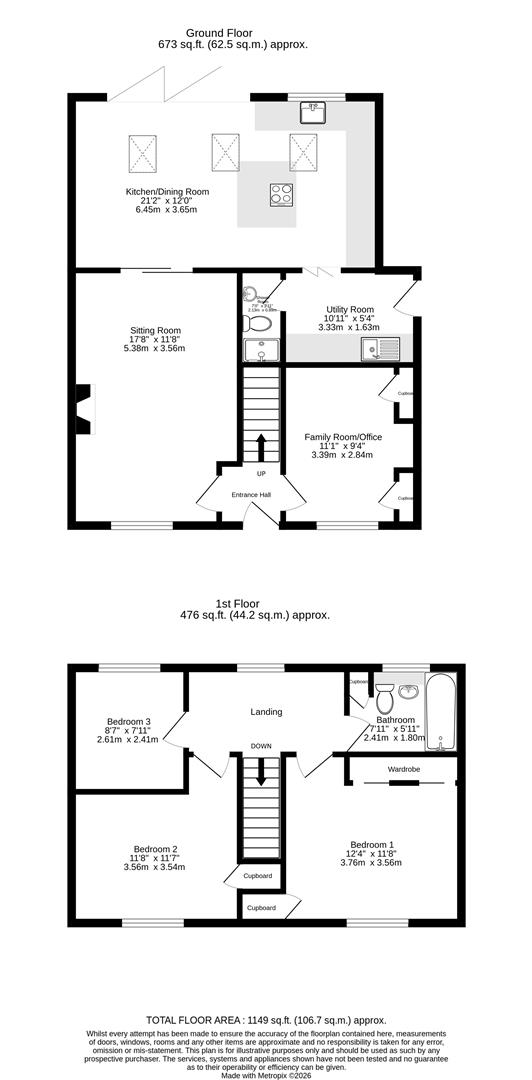
Accommodation
From the driveway the front door leads into the:
Entrance Hall - 1.35m x 1.30m (4'5 x 4'3)Stairs to first floor. Telephone point.
Family Room/Office - 3.38m x 2.84m (11'1 x 9'4)Window to front. Fitted wardrobe with clothes rail and shelving. Fitted storage cupboard. Under-stairs cupboard.
Sitting Room - 5.38m x 3.56m (17'8 x 11'8)Window to front. Fireplace with wooden mantel and stone surround/hearth. TV aerial point. Radiator. Sliding doors to:
Kitchen/Dining Room - 6.45m x 3.66m (21'2 x 12')Vaulted ceiling with two veluxes. Window to rear. Sliding doors opening fully out to the garden. Modern kitchen units with quartz work-tops, Belfast sink and central island with electric hob. Eye-level oven and oven/microwave. Space for American-style fridge/freezer. Fitted dishwasher. Tiled floor. Two period-style radiators.
Utility Room - 3.33m x 1.63m (10'11 x 5'4)Fitted storage cupboards. Work-top with stainless steel sink. Space and plumbing for washing-machine. Space for tumble-drier. Tile-effect flooring. Radiator. Door to shower room and door to side passage.
Downstairs Shower Room - 2.13m x 0.89m (7' x 2'11)Fitted shower cubicle with electric shower and glass shower-screen. Vanity unit with wash-hand basin and cupboard beneath. Low-level WC. Tile-effect flooring.
First Floor - 3.28m x 1.78m (10'9 x 5'10)From the hall stairs lead up to the landing. Window to rear. Loft hatch (Boarded with a light).
Bedroom One - 3.76m x 3.56m (12'4 x 11'8)Window to front. Fitted wardrobes along one wall. Over-stairs storage cupboard. Radiator.
Bedroom Two - 3.56m x 3.53m widest (11'8 x 11'7 widest)Window to front. Over-stairs storage cupboard. Radiator.
Bathroom - 2.41m x 1.80m (7'11 x 5'11)Frosted window to rear. Panel bath with shower unit above and glass shower-screen. Low-level WC. Vanity unit with wash-hand basin and cupboard beneath. Spotlights. Modern heated towel-rail.
Bedroom Three - 2.62m x 2.41m (8'7 x 7'11)Window to rear with countryside views. Radiator.
Outside
The property has a large gravel driveway to the front with plenty of off-street parking. A shared path leads down the tunnel to the side of the house to a gate into the back garden. This has a good-sized central lawn, blossom tree, shrubs and a raised area of decking at the bottom with lovely views over the fields directly behind.
Services and Other InformationMains water, drainage and electricity. Air heat-source pump (situated by the back of the house) running the central-heating. Double-glazed windows. Council Tax Band: D. The property is in a conservation area.
























