3 bedroom House - Terraced (Available)
Overview
A well-presented and spacious 1930’s family home, with good-sized gardens and lots of potential, just a short walk from excellent schools and other amenities. (Property Ref: FRANKLINAVENUE)
Overall Description
This 1930's mid-terraced house sits in a pleasant residential location close to good schools, making it popular with young familes. This property has three good-sized bedrooms upstairs, with a downstairs bathroom and there is potential to convert the large loft into further bedrooms if so desired, as other properties have in the area (this can be done under permitted development rights although will need building regulations approval). Downstairs there is also an entrance hall, sitting/dining room, kitchen and garden room, which could be replaced with a kitchen/dining/family room extension if so desired (again, under permitted development rights). The property is in good decorative order and has gas-fired central heating and double-glazed windows. The large front and back gardens are a real feature of this property as they have been skilfully landscaped, with well-stocked flowerbeds, making them somewhere to enjoy all year around. The back garden even has a large workshop which has potential for conversion for other uses such as a home office, teenagers' den or gym. If you are looking for a spacious family home with potential, in a good child-friendly area, then look no further. We have an Open House booked from 10am to 11am on Saturday 11th April so please call to book a time slot.
Location
The property is situated in a quiet residential location in sought-after West Cheshunt, so is nice and peaceful with little passing traffic, making it ideal for young families. There are several good schools in the immediate area including the Bonneygrove Primary School, Broxbourne Buttercups Pre-School and Goffs Academy, all just up the road. There are a handy row of local shops just a five minute walk away including a doctor's surgery. The centre of Cheshunt has a good range of shops, supermarkets and other amenities and The Brookfield Shopping Centre is just up the A10. The property has easy access to road and rail links with Cheshunt Railway Station providing regular trains to London Liverpool Street (less than 30 mins away) and the A10 giving fast access to the M25, London and beyond.
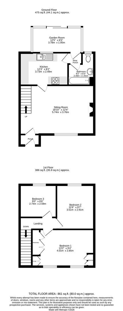
Accommodation
A gate leads through to a path across the front garden to the glazed front door into the:
Entrance Hall - 1.55m x 0.84m (5'1 x 2'9 )Window to front and side.
Sitting Room - 5.74m x 3.76m (18'10 x 12'4)Window to front. Fireplace with brick surround/hearth and electric coal-effect fire. TV aerial point. Stairs to first floor with under-stairs cupboard. Radiator.
Kitchen - 3.73m x 2.49m (12'3 x 8'2)Window to rear. Kitchen units with roll-top worksurfaces, one and a half bowl stainless-steel sink and tiled splash-back. Gas oven with gashob above. Space and plumbing for washing-machine. Space for fridge and freezer.
Rear Porch - 1.07m x 1.07m (3'6 x 3'6)From the kitchen the rear porch leads through to the downstairs bathroom and the:
Garden Room - 3.66m x 1.96m (12' x 6'5)Metal frame with single-glazed windows and sliding doors to the garden. Radiator.
Bathroom - 2.49m widest x 1.91m (8'2 widest x 6'3)Panel bath with shower attachment. Low-level WC. Wash-hand basin. Tiled walls/floor. Radiator. Window to rear.
First Floor - 2.77m x 0.86m (9'1 x 2'10)From the sitting room stairs lead up to the landing. Loft hatch (the loft has a ladder and a light and also has potential to convert).
Bedroom One - 4.01m x 2.84m (13'2 x 9'4)Two windows to front. Three fitted wardrobes. Radiator.
Bedroom Two - 3.51m x 2.92m (11'6 x 9'7)Window to rear overlooking the garden. Fitted wardrobe. Radiator.
Bedroom Three - 2.74m x 2.59m (9' x 8'6)Window to rear overlooking the garden. Radiator.
Outside
The property has a pretty front garden with well-stocked flower beds, a picket fence and a path to the house. The large back garden is a real feature of this property, beautifully landscaped with a central path leading past flowerbeds and down to the WORKSHOP: 17'5 x 6'8 of block and timber construction with two windows and a door to the front, electric power/light and fitted workbenches and shelving. Gate providing rear access via a shared path.
Services and Other InformationMains water, drainage, gas and electricity. Gas central-heating. Council Tax Band: C. TV aerial. Telephone connected.
















